VENTE

Créez un compte pour sauvegarder
vos favoris et vos annonces masquées
Nous vous suggérons de la modifier pour recevoir correctement les alertes mais aussi pour retrouver votre mot de passe oublié.
Afin d'être visible sur notre site, déposez votre annonce
chez nos partenaires (24h après avoir déposé votre annonce,
elle sera référencée sur notre site) :
FILTRER
Créer alerte
Publiée le : 25/03/2026 Vu le : 25/03/2026
Particulier
Créer une alerte
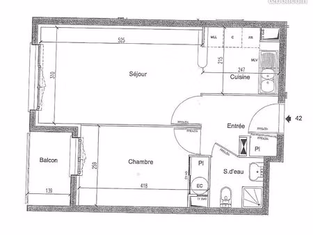
185 000€
RHONE , VILLEURBANNE , 69100
Ajouter
aux favoris
VENTE
L’Igloo vous propose une sélection de biens dans votre budget qui pourraient vous intérésser.
VENTE
VENTE
Voici une sélection de véhicules qui pourraient vous intéresser. Rendez-vous sur notre moteur de recherche dédié aux voitures : www.leparking.fr
Comment Gagner de la place pour decorer son interieur avec élégance
SUIVEZ-NOUS !Choisir la fréquence de vos emails
Vos critères
Retour aux résultats
Retour aux résultats
ne ratez plus aucune annonce
Retrouvez ici l’ensemble des alertes actives disponibles sur votre compte. Vous pouvez les supprimer
Ne ratez pas le bien de vos rêves. Cliquer sur le bouton « créer une alerte » lors de votre recherche et renseigner votre email. That's all folks !
Gérer et consultez toutes vos alertes
| Critères | Dernière alerte | Dernier email. | 1 jour | 7 jours | 30 jours |
|---|
Calcul des résultats
- Dernier email.
@_alerts.inscription.creer.compte
@_alerts.inscription.titre
@_alerts.inscription.texte.part1
@_alerts.inscription.texte.part2
Lancez vous, créez votre première alerte !
Ne ratez pas le bien de vos rêves.
3 bonnes raisons de sourcrire à l’alerting :
L'IGLOO est un moteur de recherche de biens immobiliers. Il recense plus de 3 millions d'annonces en France et en Belgique. N'hésitez pas à utiliser L'IGLOO pour trouver l'appartement ou la maison de vos rêves. Vous pourrez naviguer parmi l'ensemble des annonces du moteur et filtrer vos résultats via divers critères pertinents : type de bien , caracteristiques ,surface ,nombre de pièces, etc. L'IGLOO propose également un espace professionnel pour les spécialistes de l'immobilier. Cet espace, L'IGLOO Stats, donne accès aux statistiques du secteur de la vente de biens sur internet : prix de vente moyen, durée de vie des annonces et beaucoup d'autres indicateurs pertinents, le tout pouvant être segmenté par type ,surface , departement, ville. Utilisez L'IGLOO pour vos recherches immobilières, et n'hésitez pas à nous faire vos retours.
Retrouvez toutes vos annonces préférées et modifiez votre sélection en quelques clics
Utilisez les boutons situés au-dessus de vos annonces favorites
pour leur assigner un label et organiser vos annonces préférées.
Vous n’avez tout simplement pas trouvé un bien à la hauteur
de vos espérances ? Faites une nouvelle recherche !
Cette fois ci c'est la bonne